物件情報

西宮市新甲陽町 純和風の伝統的な日本家屋

中古一戸建て 00114

兵庫県西宮市新甲陽町
14,500万円
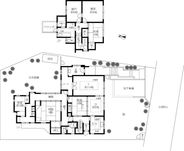
5SLDK / 203.23m²
1987年12月

有名建築家設計、日本庭園と本格的な茶室のある和の邸宅

■自然豊かな景観を保持した風致地区でありながら交通アクセス良好
■駐車場&車庫あり
■緑豊かな高台にあり陽当たり、眺望良好

1987年築、RC造2階建て

5SLDK

  • エントランス

  • 玄関

  • 日本庭園

  • リビング(床暖房完備)

  • 和室(堀ごたつ付き)

  • ダイニング

  • 茶室

  • 洋室

  • 2階からの眺望、六甲山が望めます。

  • 2階和室

  • キッチン

  • トイレ

  • 勝手口

物件詳細

価格14,500万円
間取り5SLDK
土地面積426.13m²
建物面積203.23m²
築年月1987年12月
所在地兵庫県西宮市新甲陽町
交通阪急甲陽線 / 甲陽園駅 徒歩11分
JR東海道本線 / 西宮駅 【バス】17分 新甲陽口 停歩3分
阪神本線 / 西宮駅 【バス】21分 新甲陽口 停歩3分
建物構造鉄筋コンクリート造/2階建
都市計画市街化区域
地目宅地
用途地域第一種低層住居専用地域
地勢雛段
建ぺい率40%
容積率100%
土地権利所有権
現況空室
引渡し即時
取引態様一般媒介
備考・コープ甲陽園店徒歩3分
・阪急オアシス甲陽園店徒歩12分
・ツマガリ甲陽園本店徒歩10分
・おりたクリニック徒歩10分
・弥源治歯科医院徒歩3分
・銀行・郵便局徒歩5分
・甲陽幼稚園徒歩8分
・甲陽園小学校徒歩10分
管理番号00114

MAP

図面ダウンロード

お問い合わせ

物件一覧に戻る