芦屋市六麓荘町豪邸
中古一戸建て
00112
兵庫県芦屋市六麓荘町21
38,500万円
4LDK / 359.17m²
2005年11月
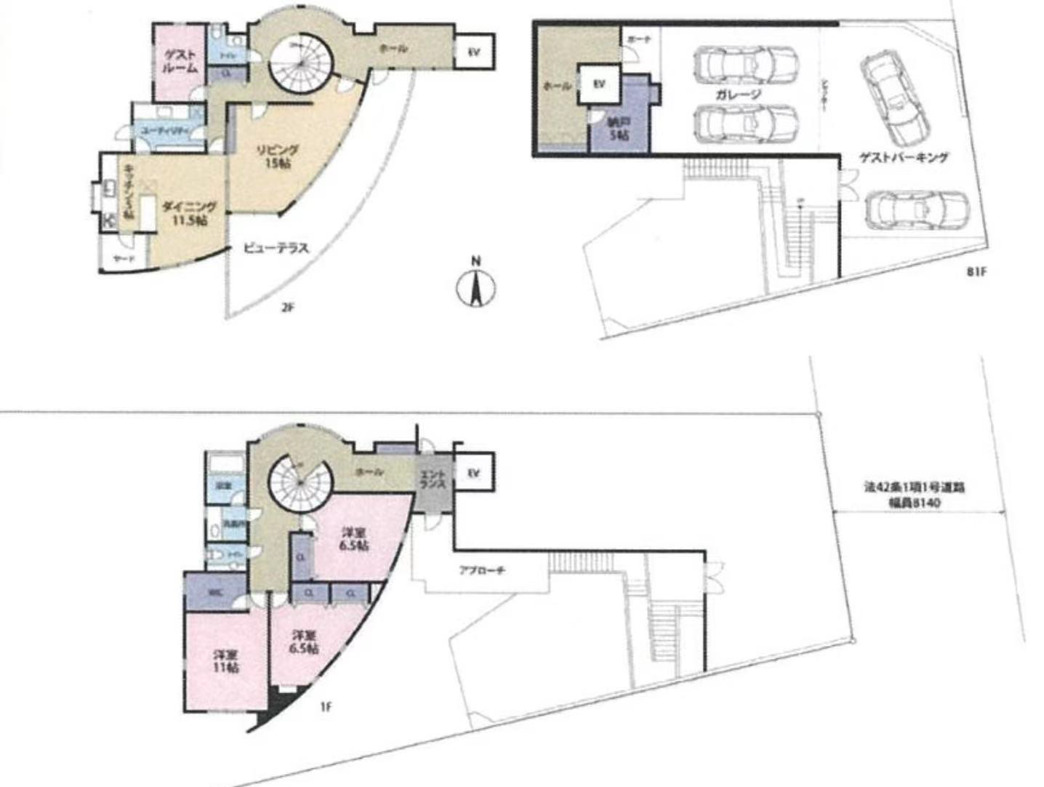
物件詳細
| 価格 | 38,500万円 |
|---|---|
| 間取り | 4LDK |
| 土地面積 | 657.85m² |
| 建物面積 | 359.17m² |
| 築年月 | 2005年11月 |
| 所在地 | 兵庫県芦屋市六麓荘町21 |
| 交通 | JR東海道線/JR芦屋駅 バス10分 停歩9分 |
| 建物構造 | 鉄骨鉄筋コンクリート造 |
| 都市計画 | 市街化区域 |
| 地目 | 宅地 |
| 用途地域 | 第一種低層住居専用地域 |
| 建ぺい率 | 30% |
| 容積率 | 80% |
| 土地権利 | 所有権 |
| 現況 | 空家 |
| 引渡し | 即時 |
| 取引態様 | 媒介 |
| 管理番号 | 00112 |

