兵庫縣蘆屋市六麓荘町的寶藏豪宅
二手獨棟住宅
00112
兵庫縣蘆屋市六麓荘町21
38,500萬日元
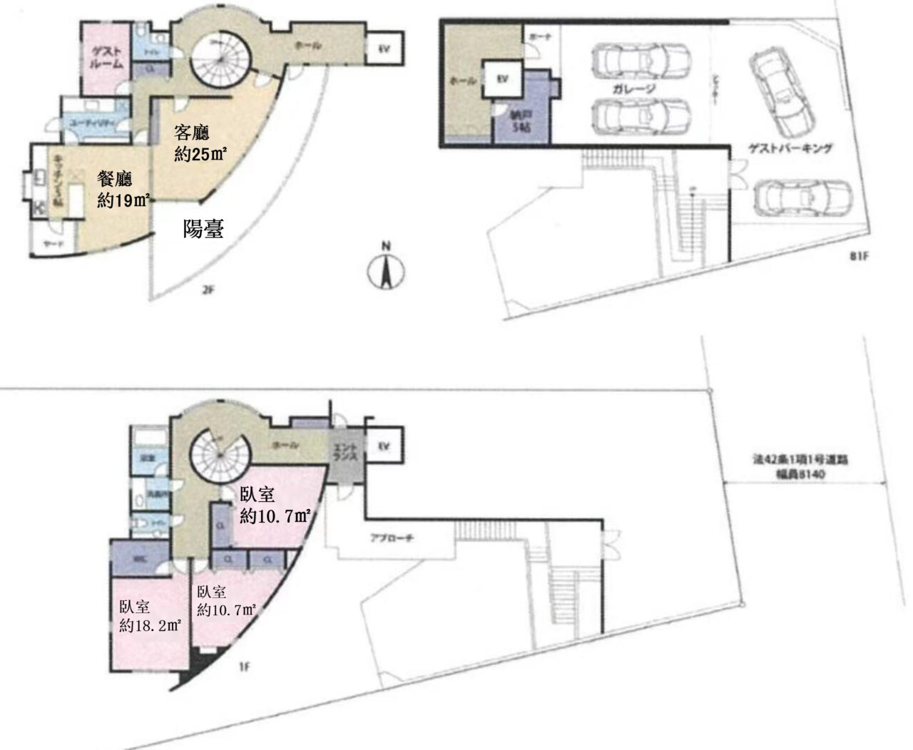
4LDK / 359.17m²
2005年11月
房源詳情
| 價格 | 38,500萬日元 |
|---|---|
| 戶型 | 4LDK |
| 土地面積 | 657.85m² |
| 建物面積 | 359.17m² |
| 建成日期 | 2005年11月 |
| 地點 | 兵庫縣蘆屋市六麓荘町21 |
| 交通 | JR東海道本線「蘆屋站」乘巴士10分鐘,下車步行9分鐘 |
| 建築結構 | 鋼骨混凝土結構 |
| 城市規劃 | 城市化區域 |
| 地目 | 宅地 |
| 用途區域 | 第一類低層住宅專用區 |
| 建築密度 | 30% |
| 容積率 | 80% |
| 土地權利 | 所有權 |
| 現狀 | 空房 |
| 交付時間 | 立即交付 |
| 管理號碼 | 00112 |


