兵库县芦屋市六麓荘町的宝藏豪宅
二手独栋住宅
00112
兵库县芦屋市六麓荘町21
38,500万日元
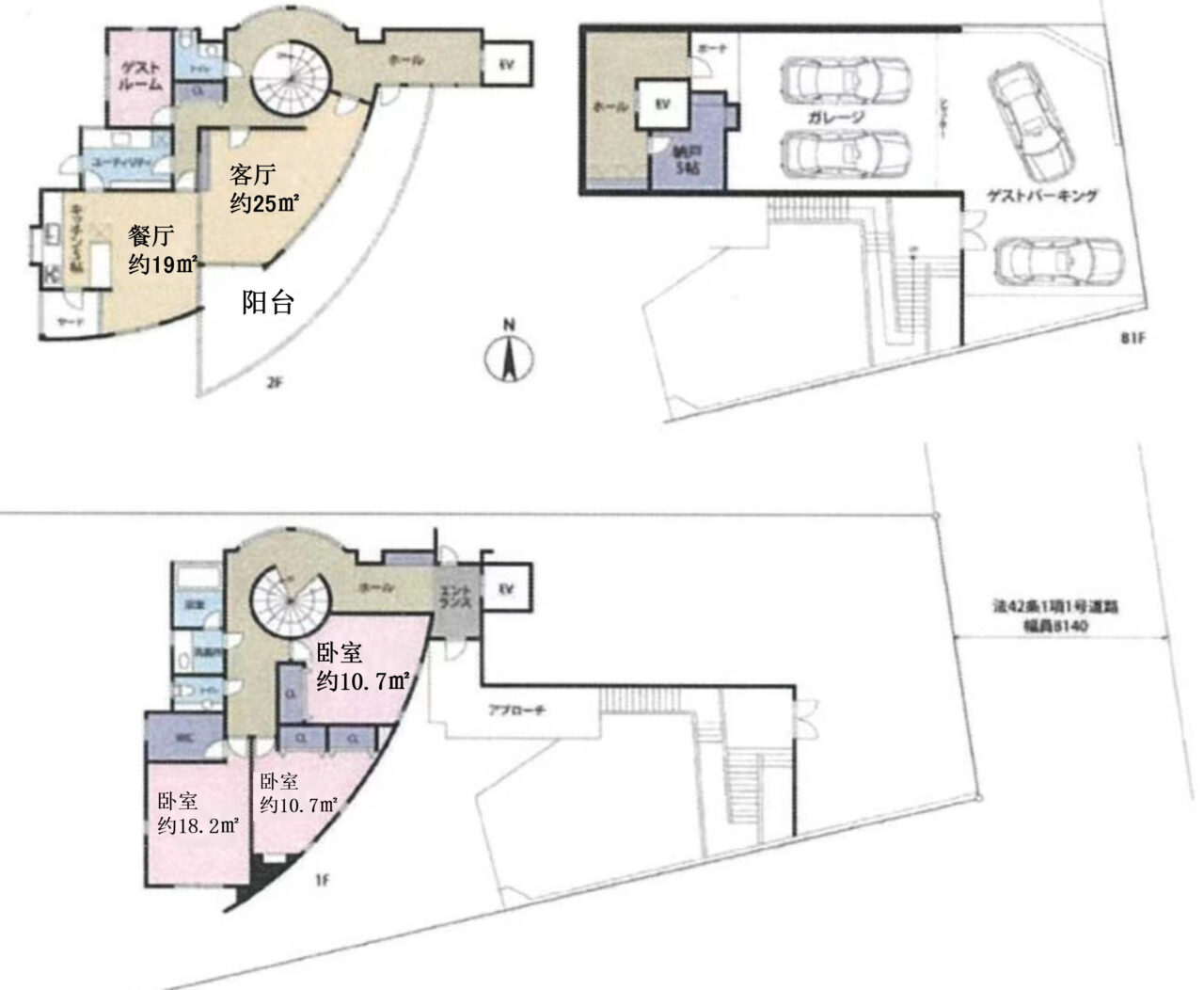
4LDK / 359.17m²
2005年11月
房源详情
| 价格 | 38,500万日元 |
|---|---|
| 户型 | 4LDK |
| 土地面积 | 657.85m² |
| 建筑面积 | 359.17m² |
| 建成日期 | 2005年11月 |
| 地点 | 兵库县芦屋市六麓荘町21 |
| 交通 | JR东海道本线「芦屋站」乘巴士10分钟,下车步行9分钟 |
| 建筑结构 | 钢骨混凝土结构 |
| 城市规划 | 城市化区域 |
| 地目 | 宅地 |
| 用途地域 | 第一类低层住宅专用区 |
| 建筑密度 | 30% |
| 容积率 | 80% |
| 土地权利 | 所有权 |
| 现状 | 空房 |
| 交付时间 | 立即交付 |
| 管理编号 | 00112 |


