西宫市新甲阳 纯正和风的传统日式豪宅
二手独栋住宅
00114
兵库县西宫市新甲阳町
14,500万日元
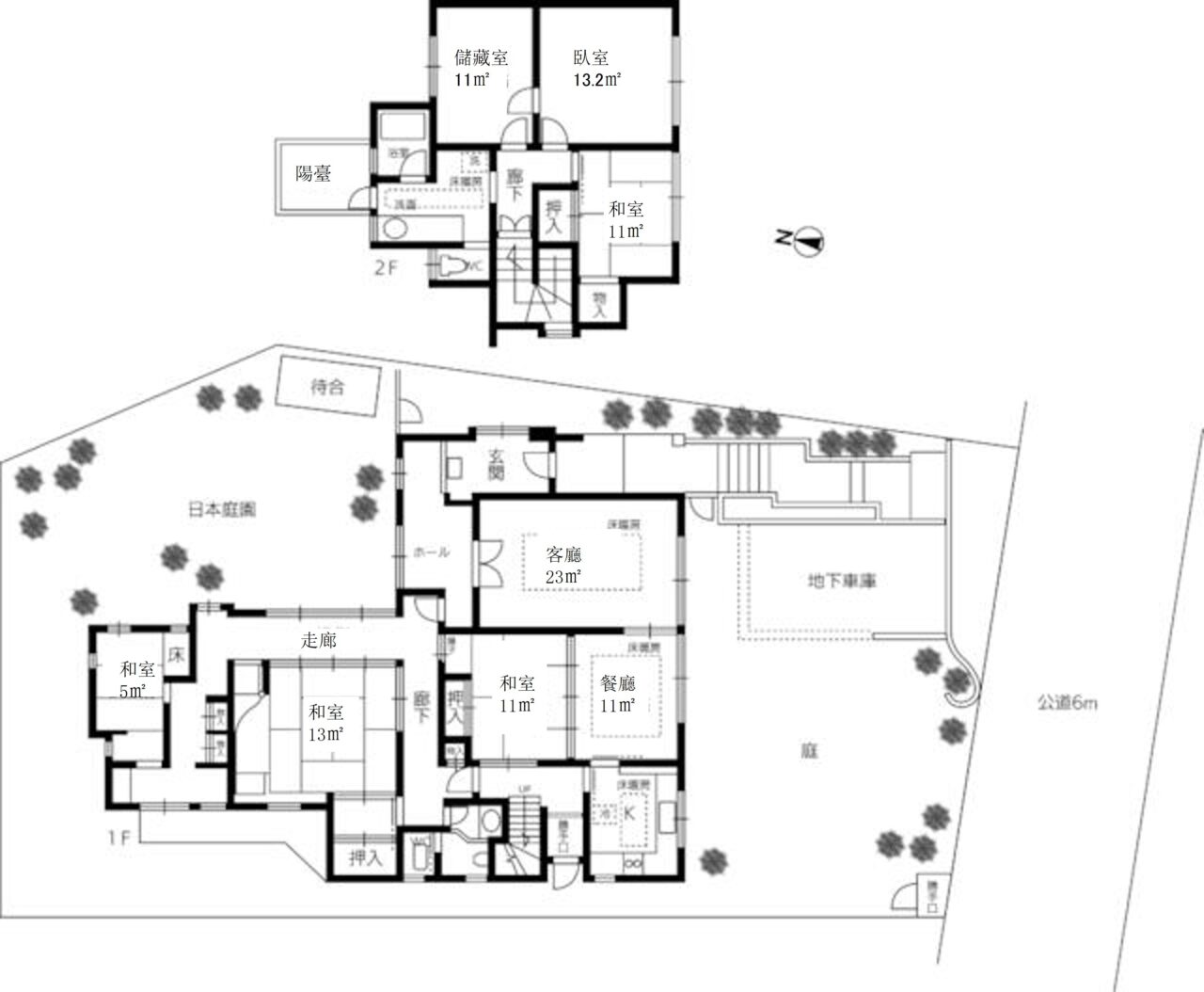
5SLDK / 203.23m²
1987年12月
距离神戸女学院中学部・高等学部约3000m
房源详情
| 价格 | 14,500万日元 |
|---|---|
| 户型 | 5SLDK |
| 土地面积 | 426.13m² |
| 建筑面积 | 203.23m² |
| 建成日期 | 1987年12月 |
| 地点 | 兵库县西宫市新甲阳町 |
| 交通 | 阪急甲阳线「甲阳园站」步行11分钟 JR东海道本线「西宫站」乘坐公交17分钟,于「新甲阳口」站下车,步行3分钟 阪神本线「西宫站」乘坐公交21分钟,于「新甲阳口」站下车,步行3分钟 |
| 建筑结构 | 钢筋混凝土结构,地上2层 |
| 城市规划 | 城市化区域 |
| 地目 | 宅地 |
| 用途地域 | 第一类低层住宅专用区 |
| 建筑密度 | 40% |
| 容积率 | 100% |
| 土地权利 | 所有权 |
| 现状 | 空室 |
| 交付时间 | 立即 |
| 备注 | Coop甲阳园店:步行3分钟 阪急OASIS甲阳园店:步行12分钟 Tsumagari甲阳园总店:步行10分钟 折田诊所:步行10分钟 弥源治牙科:步行3分钟 银行、邮局:步行5分钟 甲阳幼稚园:步行8分钟 甲阳园小学:步行10分钟 |
| 管理编号 | 00114 |


